
NYJ防火板热压机主要用于压制防火板
高压防火板以其美观、防火、耐用等特性,广泛应用于厨房家具、办公家具、工业装潢、展览用材及汽车、火车、轮船内装饰等领域。
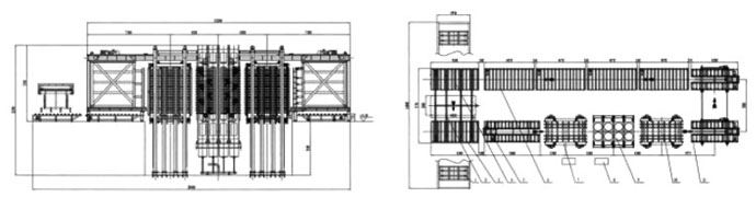
NYJ防火板热压机主要用于压制防火板,特点是板面压力高,能实现将板柸进行热压和冷却同时操作,确保生产高质量板材的工艺要求。机架是框架式结构,强度高,刚性好,油缸采用新型斯特封和密封圈结合,密封效果好,交替进出的蒸汽和冷水可加热和冷却热压板,压板内通道布置合理,使热压板升温快,温度均匀,蒸汽系统采用金属软管连接,同步机构采用齿轮齿条式,使活动横梁平稳上升,设有自动测温装置,液压系统采用流量大、噪音低的叶片泵和高压柱塞泵,满足了工艺要求的闭合时间和升压速度。
成品展示

平面布局图

防火板工艺流程:
防火板生产线主要生产设备:
设备名称 | 主要参数 | 单位 | 数量 |
一次性浸渍纸生产线 | 卧式四节 | 套 | 1 |
二次浸渍纸生产线 | 卧式五节 | 套 | 1 |
防火板热压机组 | 2800T15层 | 套 | 1 |
纵横锯边机 | 精密高速 | 套 | 1 |
底部砂毛机 | LCI型 | 台 | 1 |
覆膜机 | FMJ4型 | 台 | 1 |
不锈钢模板 | 浮雕面、镜面、柔光面 | 片 | ~200 |
试验压机 | NYJ30系列 | 台 | 1 |
防火板热压机组
NYJ系列热压机组由热压机、装板机、卸板机、垫板回送装置、真空吸盘跑车、液压系统、电控系统和温控系统组成,具有精密度高,刚性好,控制先进,使用简便等优点。主油缸均经过35~40Mpa的高压试验,保证耐压可靠;其密封结构经过优化设计,密封可靠,使用一般长达3到5年。电控系统配备有:PLC可编程控制器、人机界面和温度巡检仪;压力、温度、时间等各工艺参数和压机的工作状态都可以随时设定、修改并查阅、打印,操作极其方便、直观。
防火板热压生产线技术参数 | 型号 | |||||
NYJ134×8/28 | NYJ134×10/36 | NYJ135×12/48 | NYJ136×10/50 | NYJ136×12/56 | NYJ136×14/68 | |
总压力 | 28000 | 36000 | 48000 | 50000 | 56000 | 68000 |
单位压力 | ≤90 | |||||
层数 | 10,12,15,20,25 | |||||
层间距 | 100 | 100 | 110/120 | 130 | 130 | 130 |
热压板规格 | 2650×1420×70 | 3250×1480×70 | 3850×1720(1680)×70 | 3250×2000×80 | 3850×2000×80 | 4460×2000×80 |
成品尺寸 | 1300×2500 | 1300×3050 | 1530×3660 | 1830×3050 | 1830×3660 | 1830×4250 |
油缸规格 | Φ460×6只 | Φ460×8只 | Φ520×8只 | Φ620×6只 | Φ560×8只 | Φ620×8只 |
工作油压 | ≤28 | |||||
空车闭合时间 | ≤100 | ≤120 | ≤120 | ≤120 | ≤120 | ≤120 |
装卸机推(拉)速度 | ~4.5 | |||||
热能配置 | 200×104 | 240×104 | 360×104 | 360×104 | 400×104 | 460×104 |
总功率 | ~100 | ~100 | ~130 | ~135 | ~150 | ~160 |
重量(以15层压机为准) | 200 | 240 | 330 | 350 | 400 | 480 |